1 Одноповерховий будинок з сіп панелей. Проєкт "Казка"

Проєкти будинків з сіп панелей в УКРАЇНІ
м²
грн

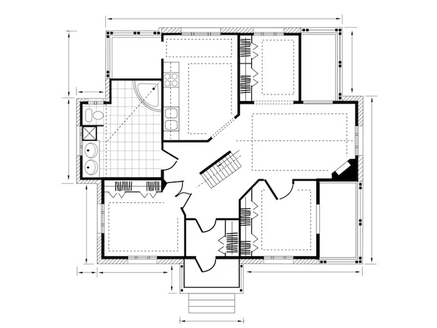
1 Одноповерховий будинок з сіп панелей. Проєкт "Казка"

Площа забудови: 90 м.кв

Житлова площа: 59,07 м.кв

Загальна площа: 85,64 м.кв

При огляді  проекту Казка, ми бачимо:
  • досить просторі три спальні
  • велику кухню-вітальню з виходом на терасу
  • ванну кімнату
  • невеликий передпокій
project
Надіслати запит
Отправить нам запрос

Як відбувається процес замовлення

Які етапи при будівництві будинку
Обговорення вимог та проекту:
Зустріч уточнення потреб і бажань у забудові. Розробка детального будівельного проекту, який відповідає вашим вимогам.
Укладення офіційного договору на будівництво, включаючи умови, строки, технічні специфікації та вартість.
Підготовка будівельного майданчика, включаючи очищення та розмітку ділянки.
Викопка та підготовка фундаменту, монтаж панелей стін, монтаж перекриття, включаючи покрівельні конструкції каркасу, а також монтаж вікон і дверей відповідно до проекту.
Внутрішні обробки стін, підлоги і стель відповідно до вашого бажання
Завершальні роботи та здача будинку: фінальна перевірка будівельних робіт та внутрішнього обладнання. Здача будинку в експлуатацію та підписання акту здачі-прийняття.

Інші проекти будинків з сіп панелей

Ми пропонуємо грамотний індивідуальний підхід до реалізації кожного будівельного проекту

UKRPANEL
Copyright © 2016-2023 All Rights Reserved
envelopephone-handsetmap-markerchevron-downcheckmark-circle